Overview
- Updated On:
- 22 marca, 2026
- 48 m2
- Year Built: 2014
Description
Jasne, bardzo funkcjonalne i gotowe do wprowadzenia się zaraz po zakupie. Mieszkanie od pierwszego właściciela, budynek z 2014 roku, II piętro, 48,20 m² + balkon.
Największe atuty mieszkania:
gotowe do zamieszkania, nie wymaga wkładu własnego, większość mebli i wyposażenia w cenie mieszkania,
unikalna prywatność: z żadnego okna nie patrzysz bezpośrednio w okna sąsiadów, to praktycznie niespotykane na nowych osiedlach – zwróć na to uwagę przy przeglądaniu innych ofert:)
widok na otwartą przestrzeń i dużo naturalnego światła w całym mieszkaniu,
bardzo dobra lokalizacja, w bliskim otoczeniu sklep, paczkomat, galeria handlowa,
ogrzewanie miejskie (MEC Koszalin) – stabilne i przewidywalne rachunki, w dotychczasowym użytkowaniu występowały regularne rozliczenia z tytułu nadpłat za ogrzewanie,
niskie koszty eksploatacji – przy 4 osobach zaliczka na czynsz to ok 760zł (ogrzewanie, woda, śmieci, utrzymanie części wspólnych, fundusz remontowy),
dużo DARMOWYCH miejsc parkingowych na terenie osiedla,
osiedle z monitoringiem wideo,
możliwość dokupienia garażu 15,5 m² z bramą automatyczną. (cena garażu to 135 000zł. W przypadku zakupu garażu razem z mieszkaniem, jego cena będzie do negocjacji.)
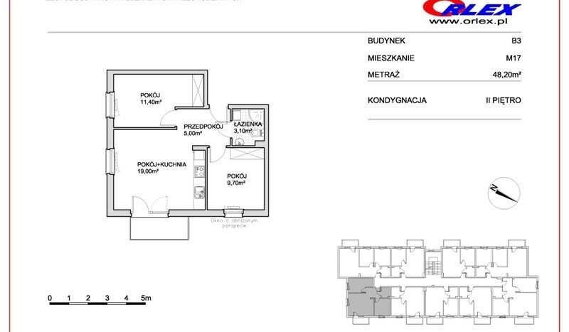
Rozkład mieszkania:
Salon z aneksem kuchennym: 19,0 m²
Pokój 1: 11,4 m²
Pokój 2: 9,7 m²
Przedpokój: 5,0 m²
Łazienka: 3,1 m²
Standard i stan:
Mieszkanie zadbane i spójnie urządzone. Aneks kuchenny w zabudowie, część dzienna z miejscem na stół i strefę wypoczynku. Łazienka z kabiną prysznicową, pralką oraz zabudową do przechowywania.
Lokalizacja – codzienne wygody w zasięgu ręki:
2-3 min pieszo: sklep Dino, Paczkomat, przystanek autobusowy,
5-8 min pieszo: Centrum Handlowe Forum (Rossman, Kauflad, apteka, restauracje), Wodna Dolina
cicha i spokojna część miasta, a jednocześnie wszędzie blisko 🙂
Oferta prywatna – sprzedaż bezpośrednia, bez prowizji dla kupującego.
Komunikat dla biur i pośredników: na ten moment nie jestem zainteresowana współpracą z biurami i pośrednikami.
- Principal and Interest
- Property Tax
- HOA fee





























