Overview
- Updated On:
- 23 marca, 2026
- 105 m2
- Year Built: 2016
Description
Segment skrajny z dużym ogrodem 200 m² – Zgorzała / Mysiadło
Na sprzedaż komfortowy dom jednorodzinny w zabudowie szeregowej – segment skrajny, położony w spokojnej i zielonej części Zgorzały (gm. Lesznowola), tuż przy Mysiadle. Nieruchomość znajduje się na kameralnym, rodzinnym osiedlu z niską zabudową.
Dom wyróżnia się dużym ogrodem o powierzchni ok. 200 m², przestronnym tarasem 25 m² oraz altaną ogrodową 12 m², dzięki czemu jest idealnym miejscem do odpoczynku, spotkań z rodziną czy zabawy dla dzieci.
Dodatkowym atutem są panele słoneczne, ogrzewanie podłogowe oraz centralny filtr wody na cały dom, co znacząco podnosi komfort codziennego życia i obniża koszty eksploatacji.
Sprzedaż prywatna – bez prowizji.
Rezerwacja domu możliwa już przy zaliczce do 20 000 zł.
Podstawowe informacje
Powierzchnia domu: 104,11 m² / ze skosami 110m2
Powierzchnia działki: ok. 142 m²
Ogród: ok. 200 m²
Taras: 25 m²
Altana ogrodowa: 12 m²
Liczba pokoi: 5
Liczba łazienek: 2
Miejsca postojowe: 2
Komórka lokatorska: 3 m²
Dodatkowo: strych do przechowywania
Dom jest gotowy do zamieszkania.
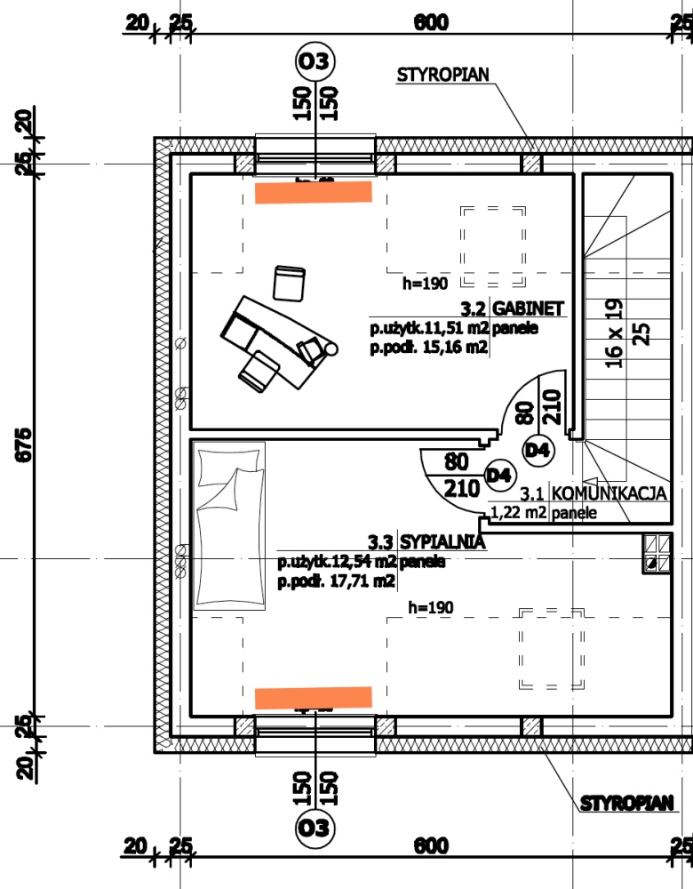
Rozkład pomieszczeń
Parter
wiatrołap
jasna kuchnia
przestronny salon z jadalnią i wyjściem na taras i do ogrodu
toaleta
kotłownia / pomieszczenie gospodarcze
I piętro
2 ustawne sypialnie + balkon
łazienka
komunikacja
II piętro
2 dodatkowe pokoje (np. sypialnia, gabinet lub pokój dziecięcy)
komunikacja
schowek z możliwością adaptacji na dodatkową łazienkę
Standard i wyposażenie
Dom został wybudowany w technologii tradycyjnej z solidnych materiałów:
ściany z Porotherm
płyta fundamentowa wylewana betonem
stropy Teriva
schody drewniane i balkon
ocieplenie 20 cm styropianu
ogrzewanie podłogowe
ogrzewanie gazowe
instalacja paneli słonecznych
centralny filtr wody na cały dom
światłowód (idealny do pracy zdalnej)
Dodatkowe atuty nieruchomości
segment skrajny – większa prywatność
duży ogród ok. 200 m²
taras 25 m²
altana ogrodowa 12 m²
plac zabaw w ogrodzie
strych do przechowywania
5 pokoi – idealne dla rodziny
spokojna, zielona okolica
sprzedaż prywatna bez prowizji
Lokalizacja
Dom znajduje się w bardzo dobrej lokalizacji, która łączy ciszę podmiejskiej okolicy z szybkim dojazdem do Warszawy.
Dojazd do Warszawy:
samochodem: ok. 25–30 minut do centrum
SKM / kolej podmiejska + metro: ok. 45 minut
W pobliżu:
Edukacja
Szkoła Podstawowa w Nowej Iwicznej – ok. 1,2 km
Szkoła w Mysiadle – ok. 2,3 km
Przedszkole w Zgorzale – ok. 500 m
Zakupy
Auchan Puławska – ok. 4 km
Designer Outlet Warszawa – ok. 3 km
CH Janki – ok. 14 km
SunPark – ok. 4 km
Sport i rekreacja
siłownia – ok. 500 m
basen w Piasecznie – ok. 3,5 km
korty tenisowe – ok. 2,3 km
stadnina koni – ok. 5 km
liczne tereny zielone i ścieżki rowerowe
- Principal and Interest
- Property Tax
- HOA fee
























