Nowoczesny dom; miniosiedle; 5km od Kielc, 174m2

zł 950,000
Favorite
bliźniak

Overview

  • Updated On:
  • 12 lutego, 2026
  • 131 m2
  • Year Built: 2026

Description

Nowoczesna bryła budynku, funkcjonalne i przestronne wnętrza, oraz solidna jakość wykonania zapewniają najwyższy komfort użytkowania dla przyszłych właścicieli.

Inwestycja składa się z 8 budynków mieszkalnych w zabudowie bliźniaczej w Masłowie Pierwszym przy ulicy Foliowej.

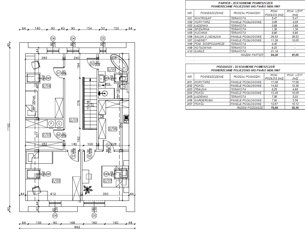
Domy połączone są jedynie poprzez garaże. Całkowita powierzchnia podłóg pojedynczego domu wynosi 174m2, natomiast powierzchnia użytkowa to 131m2. Usytuowane są na działkach o powierzchni od 440 do 650m2. Każda nieruchomość posiada niezależny wjazd na posesję, przyłącze wodociągowe, przyłącze energii oraz przyłącze kanalizacyjne. Przy drodze gminnej jest sieć światłowodowa oraz oświetlenie uliczne.

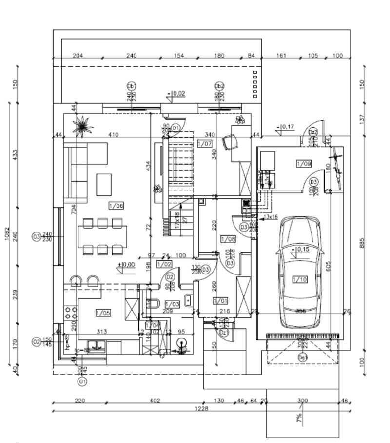
[Parter]:

– przestronny salon z jadalnią; funkcjonalna kuchnia ze spiżarnią; łazienka z prysznicem;

gabinet lub dodatkowa sypialnia; wiatrołap; duży garaż; kotłownia

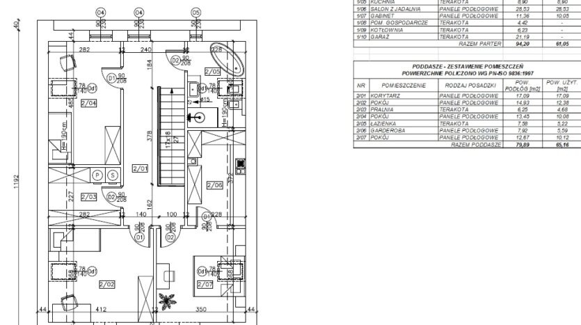
[Piętro]:

– sypialnia z garderobą; 2 x sypialnia; pralnia; przestronna łazienka z wanną i prysznicem

Właściwości/ parametry

Fundamenty:
wykonane w całości z żelbetonu (ławy +ściany). Ściana fundamentowa od samej ławy zaizolowana jest XPS-em gr. 10cm.

Ściany zewnętrzne:
ściany nośne wymurowane z betonu komórkowego h+h gr.24cm. Trzpienie konstrukcyjne, schody oraz strop nad parterem wykonane w technologii żelbetowej monolitycznej z betonu C20/25. Ocieplenie ścian zewnętrznych to 20cm styropian grafitowy (lambda 0,31W/mK) + elewacja zewnętrzna wykonana produktami marki Mapei.
stropodach wykonany w technologii żelbetowej monolitycznej. ”Lane skosy” eliminują konieczność robienia ”suchej zabudowy”. Wszystkie skośne ściany na poddaszu są gotowe i otynkowane. Ściana kolankowa ma wysokość 140cm, co przekłada się na dużą przestrzeń użytkową poddasza. Jedną z wielu zalet stropodachu jest akumulacja chłodu w porze letniej, ciepła w porze zimowej oraz znaczne wygłuszenie poddasza.

Dach:
izolacja dachu to 25cm wełny mineralnej. Poszycie wykonane z blachodachówki marki Budmat.
W każdym pomieszczeniu na piętrze jest okno dachowe (z ciepłą ramką) co przekłada się na świetne doświetlenie

Stolarka:
brama garażowa segmentowa sterowana pilotem, napęd Bennica. Okna 3 szybowe, ciepła ramka dla szyb, profil okienny 81mm;7komorowe;3uszczelki ; Uw<0,8W/m2K; Ciepły montaż okien na taśmy rozprężne + ciepły parapet. Drzwi wejściowe i ogrodowe marki Wikęd.

Tynki:
gipsowo-wapienne w pomieszczeniach suchych oraz cementowo- wapienne w łazienkach, garażu i kotłowni.

Instalacje sanitarne:
w całym domu zainstalowano ogrzewanie podłogowe, które tak jak elementy c.w.u. wykonane są w całości z komponentów firmy kan-therm. Docelowym źródłem ogrzewania jest pompa ciepła typu split Immergas z dużym buforem i zasobnikiem c.w.u. Dodatkowo wybudowany został komin spalinowy do ewentualnego podłączenia drugiego źródła ciepła na paliwo stałe np.” kocioł na biomasę”

Ogrodzenie:
wszystkie działki wydzielone ogrodzeniem panelowym, natomiast od frontu aluminiowa brama wjazdowa furtka z. Podjazd i opaska wokół domu będą utwardzone, natomiast teren zielony wyrównany i zagospodarowany pod przyszły trawnik.

Instalacje wewnętrzne:
rozbudowana instalacja elektryczna. Instalacja Ethernetowa i SAT do każdego pokoju jest dociągnięta skrętka internetowa, oraz przewód koncentryczny. Rozłożone jest również okablowanie pod system alarmowy, video-domofon oraz sterowanie strefowe ogrzewaniem podłogowym.

Możliwość wykończenia domu pod klucz wg indywidualnych ustaleń nabywcy. Posiadamy własnych fachowców w wielu dziedzinach. Według zapotrzebowania możemy wykonać np. instalację fotowoltaiczną z magazynem energii, stacje ładowania do aut elektrycznych, wentylację mechaniczną, rozbudowany system alarmowy i wiele, wiele innych.

Lokalizacja

W okolicy dominuje zabudowa jednorodzinna. Domy usytuowane są przy lokalnej drodze gminnej. W odległości 1,5 km znajduje się Urząd Gminy, oraz szkoła podstawowa.

Do najbliższego przystanku autobusowego jest 200m. Dojazd do galerii Echo zajmuje 10min.

Energy Class: A+
Energy class A+
A+
A
B
C
D
E
F
G
H
Address:
Zip: 26
Country: Poland
Open In Google Maps
Property Id : 161849
Price: zł 950,000
Property Size: 131 m2
Rooms: 5
Year Built: 2026
Other Features
bliźniak
piętro: /
rok budowy: 2026
rynek:
4,870.84
per month
  • Principal and Interest
  • Property Tax
  • HOA fee
3,683.34
czw. 21 maj
pt. 22 maj
sob. 23 maj
niedz. 24 maj
pon. 25 maj
wt. 26 maj
śr. 27 maj
czw. 28 maj
pt. 29 maj
sob. 30 maj
In Person
Video Chat
Your information

Contact Me

Call WhatsApp

Reviews

zzz
Write a Review
Your Rating & Review

Similar Listings

sprzedaż
rolna

Działka rolna 2,412 h Czułówek gm Czernichów...

zł 890,000
Na sprzedaż działka rolna o powierzchni 2,412 hektara w lokalizacji Czułówek gmina Czernic ...
26,412 m2details
sprzedaż
inwestycyjna

TEREN USŁUG HOTELOWYCH

zł 1,300,000
Działka hotelowa nr ewid. 326/59 Nr działki 281003_2.0009.326/59, Działka powstała w wynik ...
2,900,000 m2details
sprzedaż
Apartamentowiec

Nowoczesne mieszkanie 4-pokojowe z ogródkiem

zł 998,287
Spółka LOCUS HOME to DEWELOPER który realizuje inwestycje mieszkaniowe na terenie Katowic ...
110 m2details
sprzedaż
lokal użytkowy

Budynek 1300m2 Usługowo-Biurowy Centrum Brwi...

zł 4,490,000
Do Sprzedaży obiekt w centrum miasta. Budynek biurowo-usługowy w centrum Brwinowa, tuż obo ...
1,300 m2details

Compare Listings

Kontakt 48602616770