Overview
- Updated On:
- 11 marca, 2026
- 165 m2
- Year Built: 2024
Description
Na sprzedaż – nowoczesny dom w spokojnej okolicy Tarnowskich Gór
Adres: ul. Kolejarzy, Tarnowskie Góry – Centrum
Cena: 999 999 PLN (brutto) – ostateczna (nie do negocjacji) lub 235 000 Euro (wg kursu EUR z dnia 10.03.2026 z MyBank.pl)
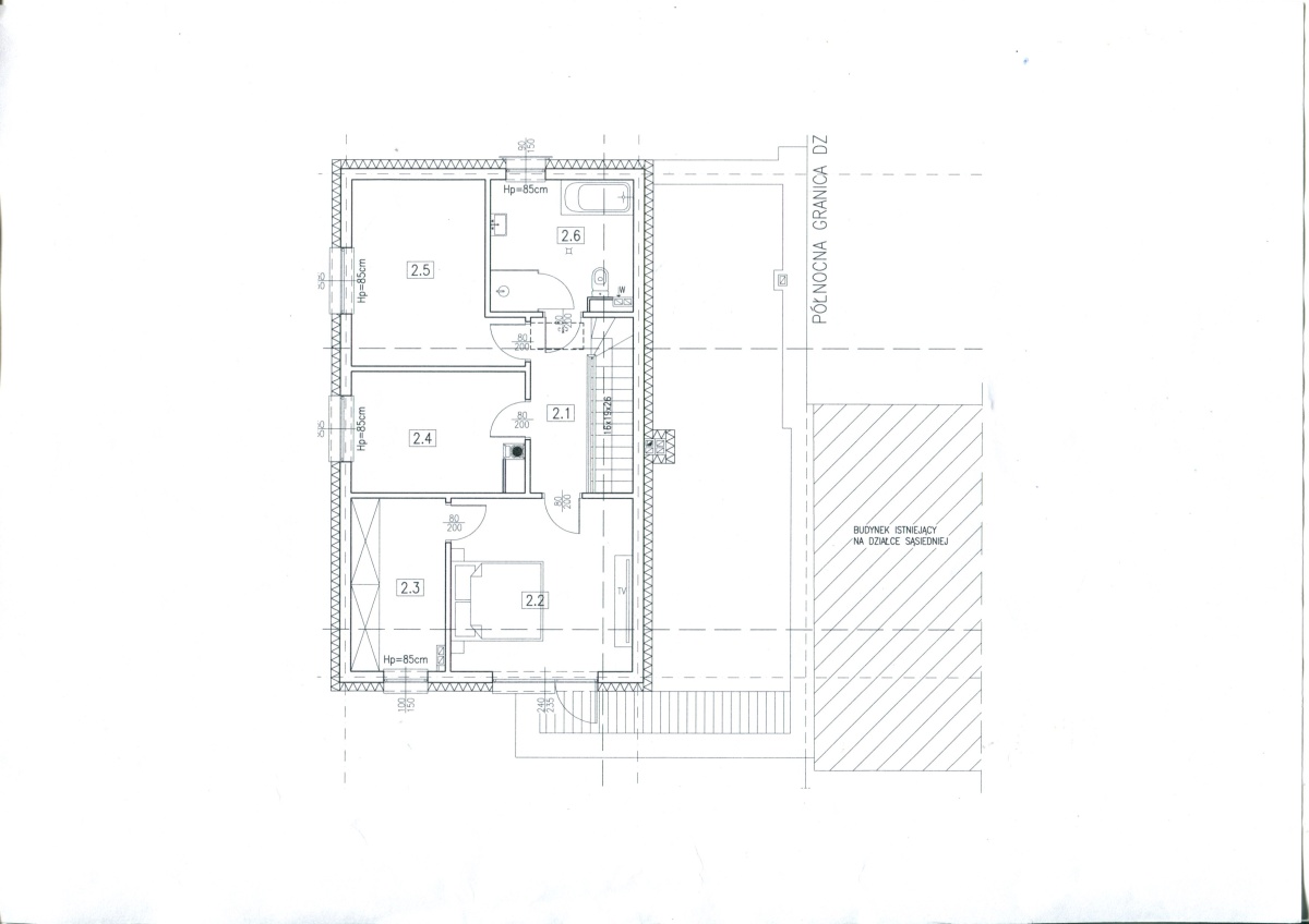
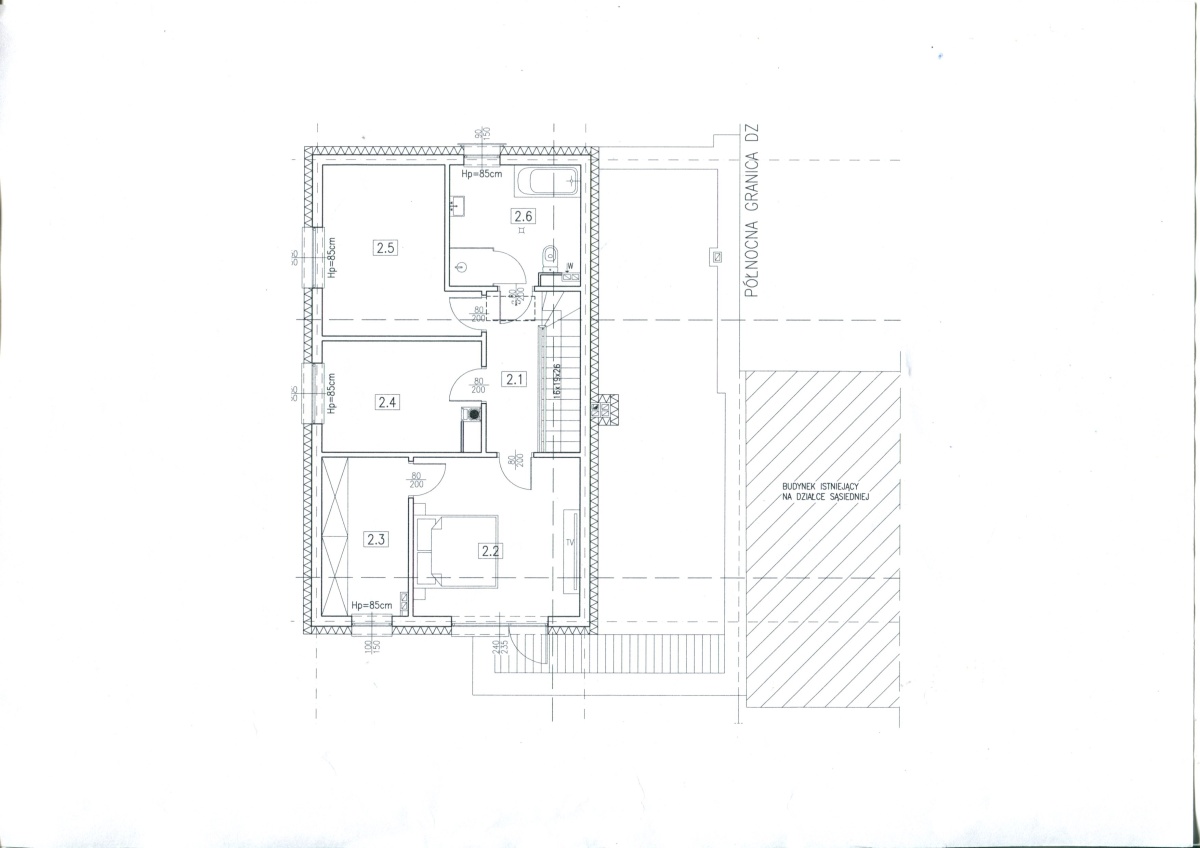
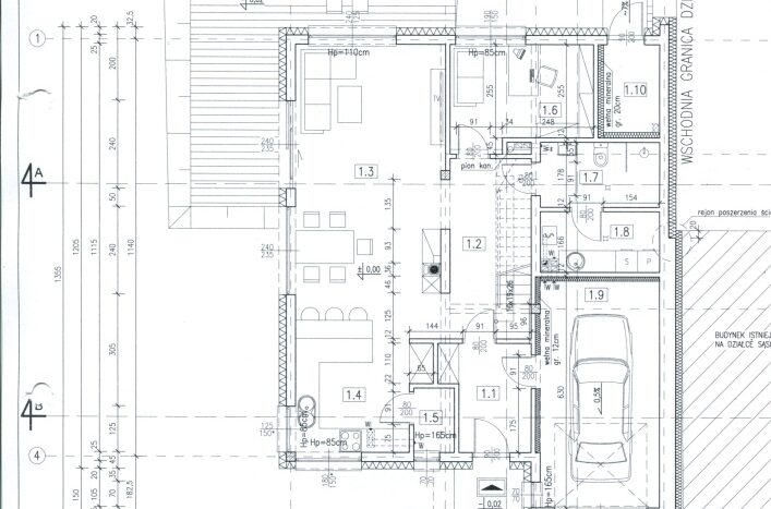
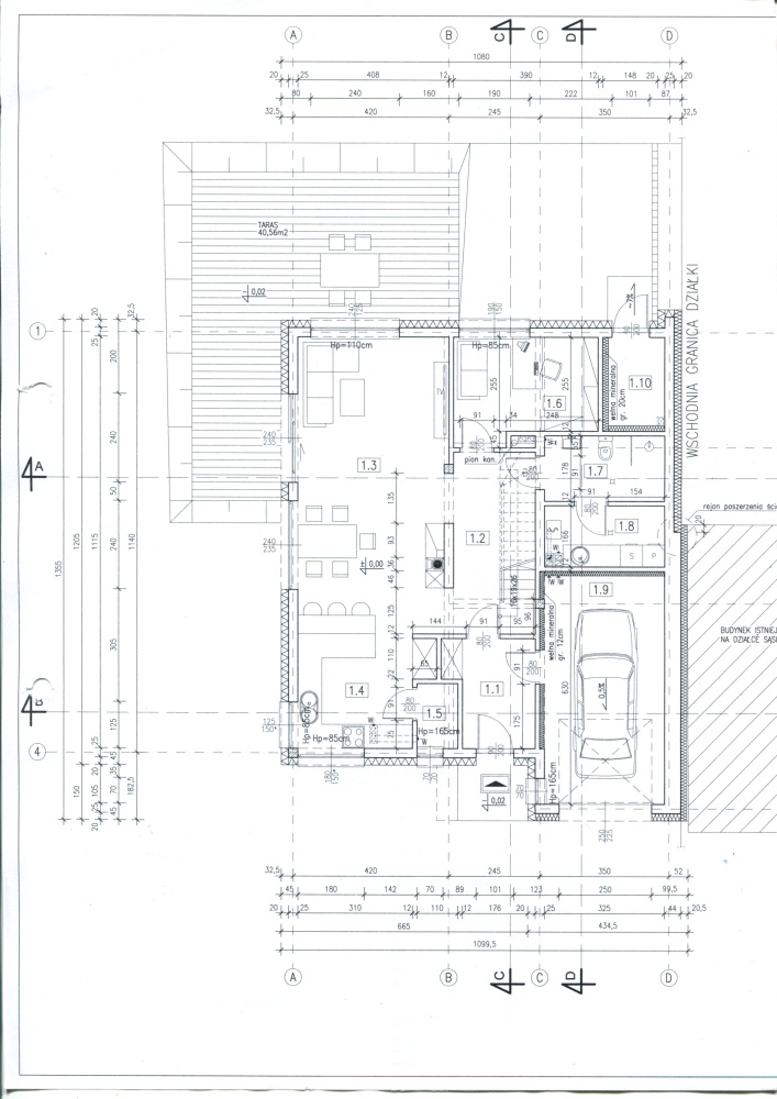
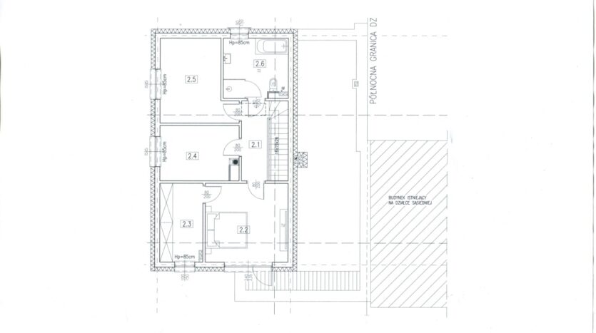
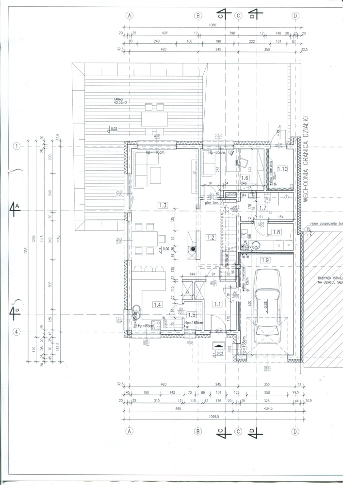
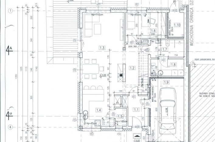
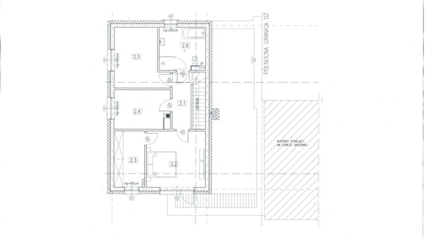
Powierzchnia domu: 165 m²
Powierzchnia działki: 480 m²
Cena za m²: 6 060 zł
Liczba pokoi: 5
Rynek: pierwotny
Certyfikat energetyczny: A
Nowoczesny, energooszczędny dom jednorodzinny o powierzchni 165 m², położony w cichej i spokojnej dzielnicy Tarnowskich Gór, przy ul. Kolejarzy. Budynek znajduje się na działce o powierzchni 480 m² i został wykonany z dbałością o jakość oraz komfort przyszłych mieszkańców.
Dom sprzedawany jest w stanie do wykończenia, co daje nowemu właścicielowi możliwość aranżacji wnętrz według własnych potrzeb i gustu.
Najważniejsze atuty nieruchomości:
okna trzyszybowe, zapewniające doskonałą izolację termiczną i akustyczną,
rolety antywłamaniowe,
pompa ciepła – niskie koszty eksploatacji,
ogrzewanie podłogowe w całym budynku,
wykonane instalacje: CO, wodno-kanalizacyjna i elektryczna,
wylewki, tynki oraz zabudowy z płyt gipsowych,
wysoka klasa energetyczna A.
Układ pomieszczeń pozwala na wygodne życie zarówno dla rodziny z dziećmi, jak i osób szukających większej przestrzeni. Pięć przestronnych pokoi stwarza wiele możliwości aranżacyjnych.
Lokalizacja zapewnia ciszę i spokój, a jednocześnie wygodny dostęp do centrum miasta, szkół, sklepów i komunikacji.
Cena: 999 999 PLN – zakup bezpośrednio od właściciela, bez dodatkowych prowizji.
Więcej zdjęć i przykłady wizualizacji pod adresem photos.app.goo.gl/D3cvGqnNjimLLCfU7
- Principal and Interest
- Property Tax
- HOA fee





























