Lokal mieszkalny z usługami BEZPOŚREDNIO bez PCC

zł 995,996
Favorite
bliźniak

Overview

  • Updated On:
  • 22 marca, 2026
  • 136 m2
  • Year Built: 2026

Description

Oferujemy sprzedaż lokalu mieszkalnego, z częścią usługową w parterze, z ogrodem, niezależnym wjazdem i wejściem. Na piętrze salon połączony z aneksem kuchennym, 2 sypialnie, łazienka oraz garderoba. Poddasze nieużytkowe do własnego zagospodarowania.

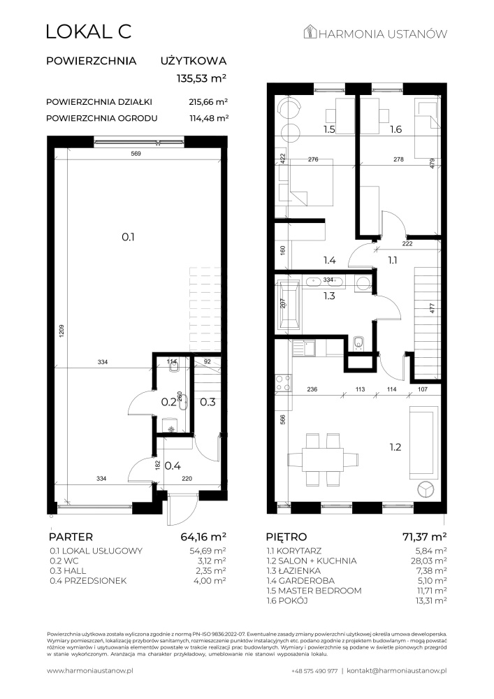
Powierzchnia użytkowa – 135,53 m²
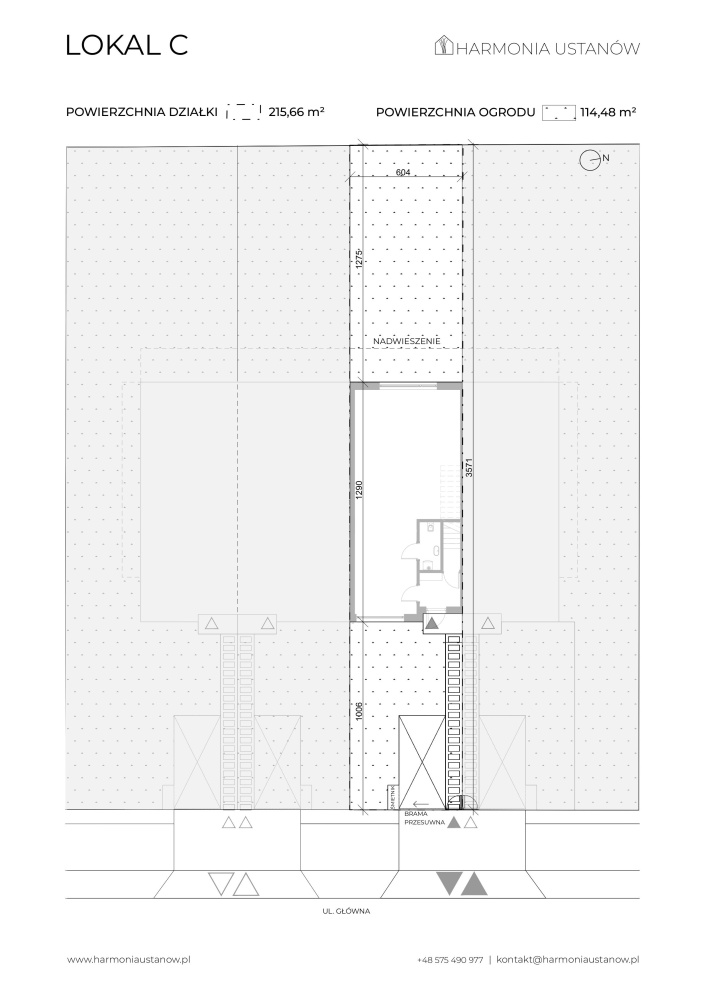
Powierzchnia działki- 215 m²

PARTER 64,16 m²
– LOKAL USŁUGOWY 54,69 m²
– WC 3,12 m²
– HALL 2,35 m²
– PRZEDSIONEK 4,00 m²

PIĘTRO 71,37 m²
– KORYTARZ 5,84 m²
– SALON + KUCHNIA 28,03 m²
– ŁAZIENKA 7,38 m²
– GARDEROBA 5,10 m²
– MASTER BEDROOM 11,71 m²
– POKÓJ 13,31 m²

UDOGODNIENIA:
• Master Bedroom z garderobą i łazienką
• Przesuwne okna tarasowe
• Przestronna łazienka
• Własny ogród
• Wysokie pomieszczenia (2,8 m w parterze i 2,7 m na piętrze) oraz okna (2,5 m)
• Pokoje bez skosów
• Poddasze (ok.56 m2 nie wliczone w metraż)

Zlokalizowane w otulinie Lasów Chojnowskich, w pobliżu pełna infrastruktura, sklepy, szkoły, przedszkola, apteki, przychodnia, przystanek bus i pkp (2 strefa ZTM Warszawa), atrakcje sportowe, turystyczne i rozrywkowe.

• Dino 190m;
• Żabka 500m;
• Piekarnia 125m;
• Szkoła podstawowa 470m;
• Przedszkole 500m;
• Apteka i przychodnia 250m;
• Las Chojnowski 600m;

Zadbaliśmy o estetyczny, nowoczesny wygląd budynku stawiając na trwałe i naturalne materiały. Ściany z pełnej cegły silikatowej, doskonałe akustycznie i konstrukcyjnie, produkowanej bez wypalania (nie promieniuje), z naturalnych surowców (wapń, piasek, woda).

Zastosowaliśmy czystą formę jasnych elewacji przełamanych ciepłym odcieniem drewna. Połączenie funkcjonalności i estetyki było naszym priorytetem.

ASPEKTY TECHNICZNE:
Oferujemy lokale w standardzie deweloperskim, ale możliwe jest również wykończenie ‘pod klucz’.
Budujemy z solidnych, sprawdzonych materiałów, w trwałej tradycyjnej technologii murowanej i żelbetowej. Dach skośny w konstrukcji drewnianej, na fragmentach stropodach żelbetowy z zielenią.
Budynek przygotowany jest do zastosowania powszechnie stosowanych źródeł ciepła, czyli gazu, pompy ciepła, rekuperacji czy fotowoltaiki z magazynem energii oraz ładowarki EV.
Każdy lokal posiada niezależny wjazd z furtką, miejsce parkingowe oraz ogrodzony ogród.

O NAS
Jesteśmy firmą z wieloletnim doświadczeniem zdobytym przy projektach deweloperskich na terenie Warszawy i w okolicach.
Łączymy doświadczenie architektoniczne i wiedzę budowlaną z pasją do tworzenia estetycznych rozwiązań. W naszym zespole pracują osoby charakteryzujące się dużym dorobkiem projektowym, wykonawczym i inwestycyjnym. Doświadczenie zdobyliśmy współpracując z partnerami inwestycyjnymi, deweloperami, podwykonawcami, biurami projektów jak i doradcami technicznymi przy przygotowaniu oraz realizacji inwestycji mieszkaniowych.

Zapraszamy do zapoznania się z inwestycją na naszej stronie harmoniaustanow.pl oraz do kontaktu telefonicznego.

+48 575 490 977

w w w . h ar m o n i a u s t a n o w .p l

Energy Class: A+
Energy class A+
A+
A
B
C
D
E
F
G
H
Address:
Zip: 05-540
Country: Poland
Open In Google Maps
Property Id : 167591
Price: zł 995,996
Property Size: 136 m2
Rooms: 6
Year Built: 2026
Other Features
bliźniak
piętro: /
rok budowy: 2026
rynek:
5,106.67
per month
  • Principal and Interest
  • Property Tax
  • HOA fee
3,861.67
pt. 22 maj
sob. 23 maj
niedz. 24 maj
pon. 25 maj
wt. 26 maj
śr. 27 maj
czw. 28 maj
pt. 29 maj
sob. 30 maj
niedz. 31 maj
In Person
Video Chat
Your information

Contact Me

Call WhatsApp

Reviews

zzz
Write a Review
Your Rating & Review

Similar Listings

sprzedaż
budowlana

Działka Nadarzyn ul. Błońska

zł 4,200,000
PIĘKNA DZIAŁKA 18159 m2 W NADARZYNIE W miejscowym planie zagospodarowania przestrzennego t ...
18,159 m2details
sprzedaż
budowlana

Działki budowlane Ścinawka Górna, kotlina kł...

zł 100,000
Sprzedam działki budowlane o powierzchni od 10 do 15 arów w miejscowości Ścinawka Górna w ...
1,000 m2details
sprzedaż

Lokal usługowy 47 m² Katowice Ligota-Panewni...

zł 544,525
Oferujemy lokal usługowo-handlowy o powierzchni 47 m² na parterze dwupiętrowego apartament ...
47 m2details
sprzedaż
Apartamentowiec

Nowoczesne mieszkanie 4-pokojowe z balkonem

zł 748,411
Spółka LOCUS HOME to DEWELOPER który realizuje inwestycje mieszkaniowe na terenie Katowic ...
90 m2details

Compare Listings

Kontakt 575 490 977