Overview
- Updated On:
- 15 stycznia, 2026
- 199 m2
- Year Built: 2024
Description
Dom w zabudowie bliźniaczej
Lokalizacja: Świdnik ul. Partyzantów (os. Adampol)
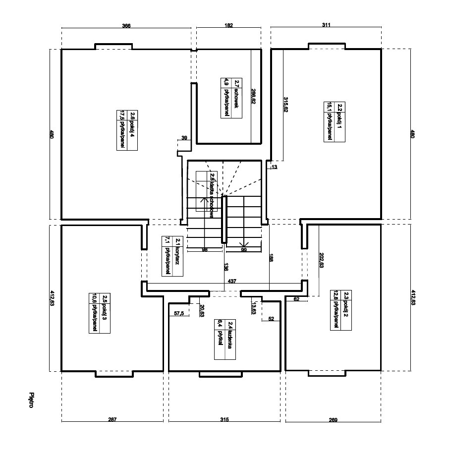
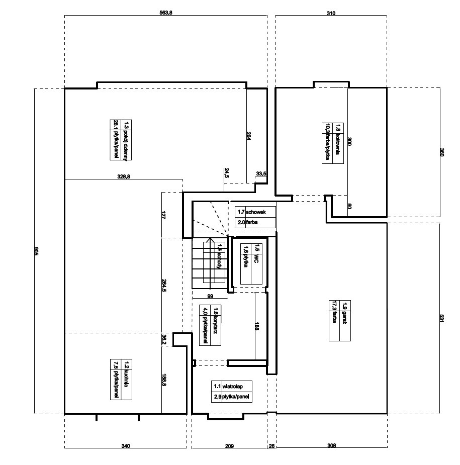
Powierzchnia użytkowa domu 199,06 m2 (parter 73,07 m2, piętro 70,37 m2, poddasze 55,62 m2)
Liczba pokoi: 6 (przestronny salon, 4 sypialnie w tym 1 z garderobą, na poddaszu jedno duże pomieszczenie/pokój do zagospodarowania)
Garaż + dodatkowe miejsce postojowe
Komfortowy układ pomieszczeń:
parter: duży, jasny salon z wyjściem na taras i ogród, kuchnia z jadalnią, toaleta, wiatrołap, garaż + pomieszczenie gospodarcze
piętro: 4 ustawne sypialnie w tym jedna z garderobą, przestronna łazienka
otwarte poddasze o powierzchni 55,62 m2 do dowolnej adaptacji, małe pomieszczenie techniczne.
Zadbany teren z dużym tarasem
Ogrzewanie:
Nowoczesny piec gazowy + rekuperacja
Solidne ogrodzenie: bloczki ogrodzeniowe plus panele z profili metalowych, malowanych proszkowo
Dom znajduje się w spokojnej okolicy – osiedlu domów jednorodzinnych
W pobliżu sklepy, szkoła podstawowa, liceum im. W. Bronieweskiego, przedszkole – kilka minut pieszo, cała główna infrastruktura społeczna Świdnika max. 5 min samochodem
szybki dojazd do centrum Lublina (Zamek Lubelski) ok.14 min
w okolicy las i ścieżki spacerowe
uregulowany stan prawny – pełna własność, księga wieczysta, pozwolenie na użytkowanie
bez obciążeń hipotecznych
media: prąd, woda, kanalizacja, gaz
Zapraszam do kontaktu.
- Principal and Interest
- Property Tax
- HOA fee









