Overview
- Updated On:
- 12 lutego, 2026
- 160 m2
- Year Built: 2026
Description
Zapraszam do obejrzenia domu dwulokalowego zlokalizowanego w Piastowie.
Inwestycja jest bliska ukończenia. Dom znajduje się w cichej okolicy, w drugiej linii zabudowy, z wygodnym wjazdem z kostki, wokół przyjemna zabudowa sąsiedzka ze sporą ilością zieleni.
Główne parametry:
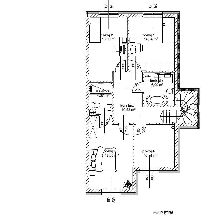
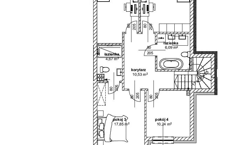
– powierzchnia użytkowa lokalu to 159,76 m2
– ogródek ma ponad 150 m2
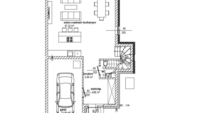
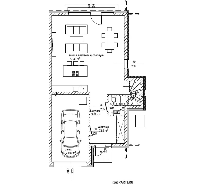
– PARTER: duży wiatrołap, salon z kuchnią (ok 47 m2), toaleta, wygodny garaż o powierzchni 21 m2 w bryle budynku
– PIĘTRO: 4 duże sypialnie (ok. 14+15+18+10 m2) oraz 2 łazienki
– garaż na jedno auto plus drugie wygodne miejsce do parkowania na terenie
– ogrzewanie podłogowe w całym domu, zasilane oszczędną pompą ciepła
– przygotowanie do montażu klimatyzacji we wszystkich pokojach,
– media woda oraz kanalizacja miejska (MPWiK), szybki internet (światłowód)
Zakończenie wszelkich prac budowlanych oraz zagospodarowania terenu planowane jest na wiosnę 2026r.
Inwestycja objęta Deweloperskiem Funduszem Gwarancyjnym, sprzedaż realizowana bezpośrednio przez dewelopera (adres strony wwwperydomycom)
Zapraszam do kontaktu i prezentacji.
*z góry dziękuję za wszelkie usługi brokerskie/agencyjne, nie skorzystam
- Principal and Interest
- Property Tax
- HOA fee




















