Overview
- Updated On:
- 25 lutego, 2026
- 64 m2
Description
Bezpośrednio- poddasze z potencjałem inwestycyjnym 11,79% ROI
Sprzedam poddasze w 1 piętrowej kamienicy (a więc poddasze to poziom 1 piętra).
Dzielnica Murcki– spokojna i zielona oddalona od centrum, ale z dobrym dojazdem.
Budynek w trakcie remontu– rosnąca wartość nieruchomości w czasie.
Najważniejsze parametry:
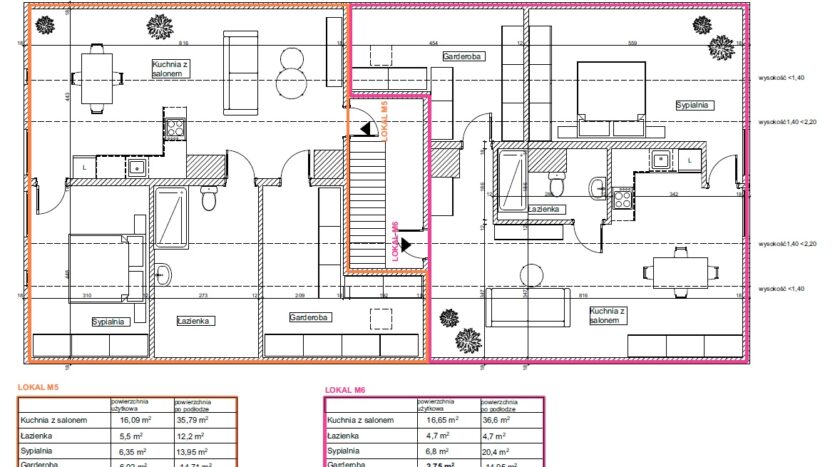
– 155,1 m² po podłodze – 63,8 m² PUM (pow. użytkowa)
– Lokal formalnie niemieszkalny z uzyskaną samodzielnością
– Możliwość przekształcenia i zmiany przeznaczenia na 2 mieszkania 2-pokojowe o powierzchniach 30,9 m² oraz 33,96 m² PUM (po podłodze po ok. 76 m² każde)
Stan techniczny :
– Nowa instalacja elektryczna
– Nowa instalacja wod.-kan.
– Okna 3-szybowe
– Dach ma 3 lata – nie wymaga napraw (pokrycie dachówka). Możliwość montażu okien dachowych od strony podwórka.
Do zrobienia ogrzewanie – najlepiej centralne elektryczne lub maty na podczerwień.
To nie jest gotowiec, to projekt z potencjałem, który możesz zrobić pod siebie lub pod wynajem.
CENA: 157.000 zł
Zainteresowany szczegółami, rzutami lub analizą najmu?
Napisz wiadomość lub zadzwoń– prześlemy komplet informacji.
- Principal and Interest
- Property Tax
- HOA fee
















