3 pokoje | Parter | Ogródek | Nowe budownictwo

zł 499,000
Favorite
Nowe budownictwo

Overview

  • Updated On:
  • 18 marca, 2026
  • 63 m2
  • Year Built: 2026

Description

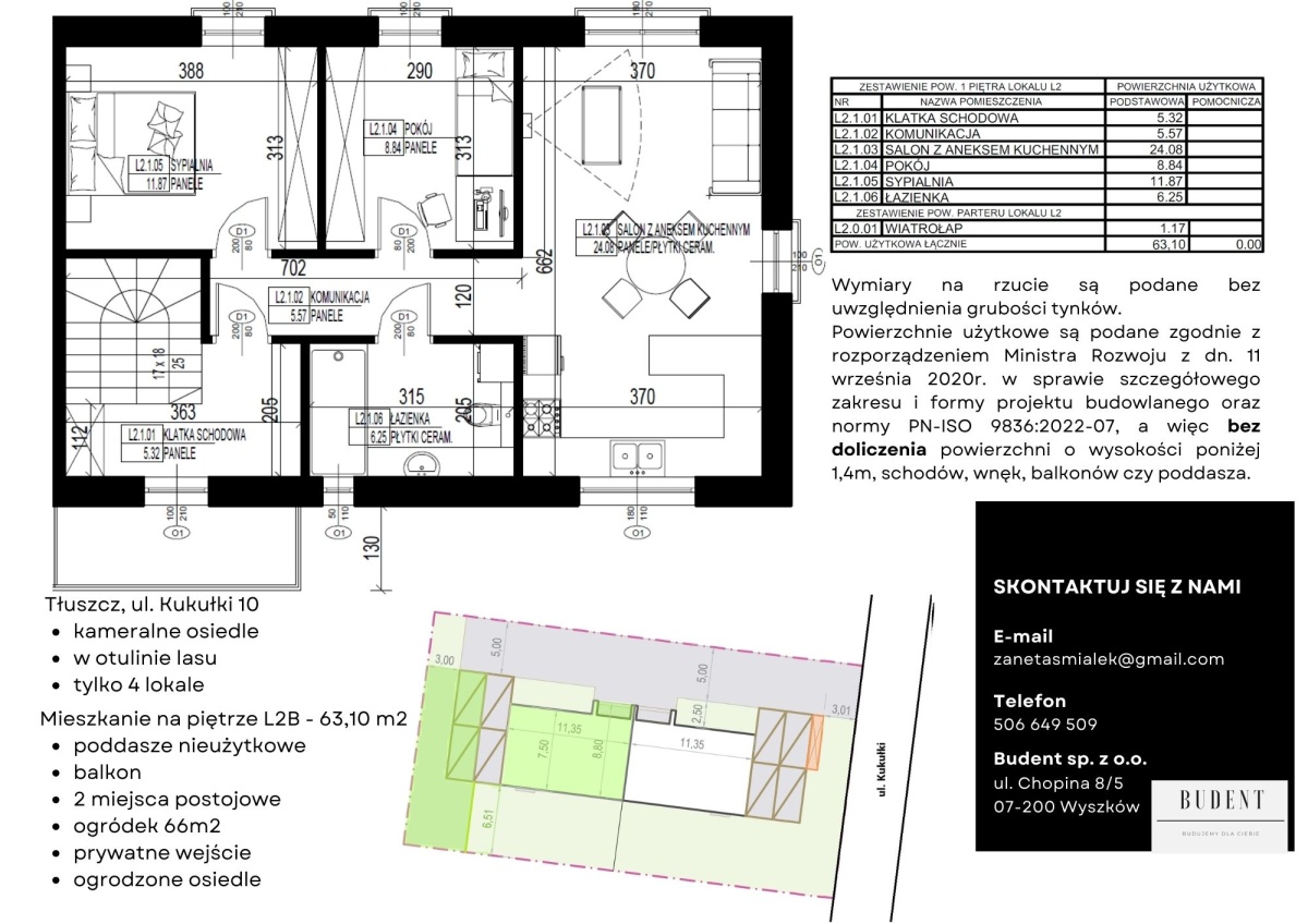
Na sprzedaż mieszkanie L2B 3-pokojowe na piętrze o powierzchni 63,10 m² z dużym ogródkiem 66 m².
Lokal w nowym budownictwie, w trakcie realizacji – planowane zakończenie prac: czerwiec 2026 r.
Idealna propozycja dla rodzin z dziećmi, par oraz osób szukających mieszkania z własną przestrzenią na zewnątrz.
________________________________________
Powierzchnia i układ (63,10 m²):
• Salon z aneksem kuchennym – 24,08 m² (wyjście do ogrodu)
• Pokój – 11,87 m²
• Pokój – 8,84 m²
• Łazienka – 6,25 m²
• Klatka schodowa – 5,32 m²
• Komunikacja – 5,57 m²
• Wiatrołap – 1,17 m²
• Balkon
• Poddasze nieużytkowe
________________________________________
Ogródek:
• 66 m² prywatnej przestrzeni
• możliwość aranżacji tarasu, strefy wypoczynku lub miejsca zabaw dla dzieci
• idealne rozwiązanie dla osób ceniących komfort i kontakt z naturą
________________________________________
Najważniejsze atuty:
• piętro – zapewniona prywatność
• funkcjonalny, przemyślany układ
• salon z wyjściem do ogrodu
• ogrzewanie podłogowe w całym mieszkaniu
• nowe budownictwo
• inwestycja w trakcie budowy
• termin zakończenia: czerwiec 2026
________________________________________
To mieszkanie sprawdzi się zarówno jako lokal do zamieszkania, jak i bezpieczna inwestycja na przyszłość.
Zapraszam do kontaktu – dostępne są również inne mieszkania. Chętnie odpowiem na wszystkie pytania.
www.budent.pl

Energy Class: A+
Energy class A+
A+
A
B
C
D
E
F
G
H
Address:
Zip: 05-240
Country: Poland
Open In Google Maps
Property Id : 157132
Price: zł 499,000
Property Size: 63 m2
Rooms: 3
Year Built: 2026
Other Features
Nowe budownictwo
piętro: 1/1
rok budowy: 2026
rynek:
2,558.47
per month
  • Principal and Interest
  • Property Tax
  • HOA fee
1,934.72
pt. 22 maj
sob. 23 maj
niedz. 24 maj
pon. 25 maj
wt. 26 maj
śr. 27 maj
czw. 28 maj
pt. 29 maj
sob. 30 maj
niedz. 31 maj
In Person
Video Chat
Your information

Contact Me

Call WhatsApp

Reviews

zzz
Write a Review
Your Rating & Review

Similar Listings

sprzedaż
rolno-budowlana

działka rolno-budowlana

zł 300,000
Do sprzedania działka rolno-budowlana o powierzchni 1,11 ha położona w Zadrożu przy drodze ...
11,100 m2details
sprzedaż

Apartament pod najem przy stoku narciarskim

zł 329,000
2 Apartamenty Inwestycyjne Gotowe do Zakupu od Ręki! Lokalizacja: Resort Czarna Góra, Sien ...
22 m2details
sprzedaż
Apartamentowiec

Nowoczesne mieszkanie 2-pokojowe z balkonem

zł 492,161
Spółka LOCUS HOME to DEWELOPER który realizuje inwestycje mieszkaniowe na terenie Katowic ...
55 m2details
sprzedaż
Apartamentowiec

DWA apartamenty lokale| Centrum | 100m. od p...

zł 1,390,000
Na sprzedaż przestronny lokal inwestycyjny o łącznej powierzchni 164 m², położony na parte ...
164 m2details

Compare Listings

Kontakt 506649509