Overview
- Updated On:
- 27 lutego, 2026
- 75 m2
- Year Built: 1896
Description
Zdjęcia przedstawiają rzeczywisty stan mieszkania.
Na sprzedaż wyjątkowo jasne i dobrze zaprojektowane mieszkanie o powierzchni 75,46 m², położone w centrum Bytomia, zaledwie ok. 250 m od Rynku, w okolicach Placu Sobieskiego (naprzeciwko Miejskiej Biblioteki Publicznej). Lokal znajduje się na 2. piętrze zadbanej, ocieplonej kamienicy (2-piętrowej) – co oznacza brak sąsiadów nad głową i więcej spokoju na co dzień.
To mieszkanie jest idealnym połączeniem klimatu kamienicy i nowoczesnego wykończenia. Zachwyca już od wejścia: wysokie sufity, duże okna oraz elegancka sztukateria nadają wnętrzu ponadczasowy charakter, przestrzeń i światło. Całość została przygotowana w spójnym stylu, z dbałością o detale i funkcjonalność — bez przypadkowych rozwiązań.
Najważniejsze atuty
generalny remont – zrobione „od podstaw”
wysokie sufity + duże okna – wyjątkowa przestrzeń i świetne doświetlenie
sztukateria ścienna – efekt „premium” i klimat kamienicy
3 pokoje: salon z aneksem + 2 sypialnie
pokój kąpielowy: wanna + prysznic walk-in
osobna pralnia / suszarnia – porządek i wygoda, bez pralki w łazience
2 przedpokoje z miejscem na duże szafy – idealne pod zabudowę
niski czynsz tylko 403,71 zł (eksploatacja + fundusz remontowy)
ogrzewanie własne gazowe – nowy, wysokiej klasy kocioł dwufunkcyjny
piwnica ok. 20 m² (dodatkowa przestrzeń, nie wliczona w metraż)
parking: miejsca pod budynkiem oraz możliwość parkowania na dziedzińcu
pełna własność z KW, bez zadłużeń – możliwy zakup na kredyt
kamienica zadbana i po ociepleniu, wymienione drzwi wejściowe kilka miesięcy temu
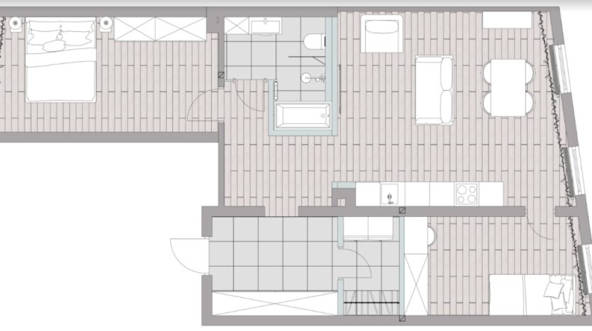
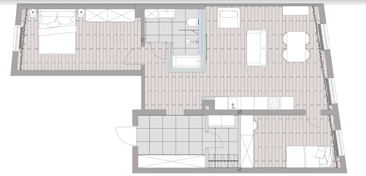
Układ mieszkania (funkcjonalny i wygodny)
Mieszkanie składa się z:
przestronnego salonu z aneksem kuchennym, z miejscem na część wypoczynkową i jadalnianą,
sypialni głównej,
drugiej sypialni – idealnej również jako pokój dziecka lub gabinet,
dużej łazienki / pokoju kąpielowego z wanną i prysznicem walk-in,
osobnej pralni i suszarni (świetna na sprzęty gospodarcze i przechowywanie),
2 przedpokojów z miejscem na głębokie szafy w zabudowie.
Kuchnia i wyposażenie
Mieszkanie jest sprzedawane jako gotowe do wprowadzenia – z wykończoną łazienką i kuchnią.
Remont
W trakcie remontu wykonano m.in.:
wypoziomowanie podłóg,
sufity podwieszane z dociepleniem 15 cm wełną,
ściany wykonane w zabudowie karton-gips,
nową instalację elektryczną,
w każdym pokoju doprowadzono kabel antenowy oraz kabel internetowy,
nową instalację gazową,
nową instalację wodno-kanalizacyjną.
Ogrzewanie: własne gazowe – nowy kocioł dwufunkcyjny (ogrzewanie + ciepła woda).
Koszty utrzymania
Czynsz: 403,71 zł (eksploatacja + fundusz remontowy).
Dodatkowo płatne media wg zużycia.
Lokalizacja – centrum, wszystko pod ręką
Mieszkanie znajduje się w ścisłym centrum Bytomia – ok. 250 m od Rynku, w okolicy Placu Sobieskiego i Biblioteki Publicznej.
W pobliżu dostępne są sklepy, restauracje, punkty usługowe, komunikacja miejska, szkoły i przedszkola. Lokalizacja zapewnia również bardzo wygodny dojazd do miast ościennych, w tym Katowic.
Dla kogo
Dla pary – układ daje komfort: duży salon, oddzielna sypialnia i dodatkowy pokój na pracę zdalną.
Dla rodziny 2+1 lub 2+2 – dwie sypialnie, a przestrzeń dzienna jest duża i ustawna.
Dla osób pracujących z domu – druga sypialnia świetnie sprawdzi się jako wygodny gabinet, a osobna pralnia pomaga utrzymać porządek.
Dla inwestora – centrum, 3 pokoje, świetny standard i funkcjonalny układ to bardzo mocne argumenty pod wynajem.
To mieszkanie wyróżnia się na tle innych ofert tym, że łączy klimat kamienicy z nowoczesnym wykończeniem, a do tego ma wyposażenie i pomieszczenia, których często brakuje: pralnię, wannę i prysznic walk-in w jednej łazience oraz dużą piwnicę.
Stan prawny:
Pełna własność z księgą wieczystą, bez zadłużeń.
- Principal and Interest
- Property Tax
- HOA fee






















